EN | PL | IT
history of the theatresupplementtechnical dataHistoric equipmentWojciech Bogusławski Theatre
alias Landesbühne (1939-1945), Teatr Miejski im. Wojciecha Bogusławskiego (Wojciech Bogusławski City Theatre, 1936-1939, 1946-1949), Teatr Miejski (City Theatre, 1945-1946)Pl. Bogusławskiego 1 | |
| show on the map | http://www.teatr.kalisz.pl/ |
List of galleries
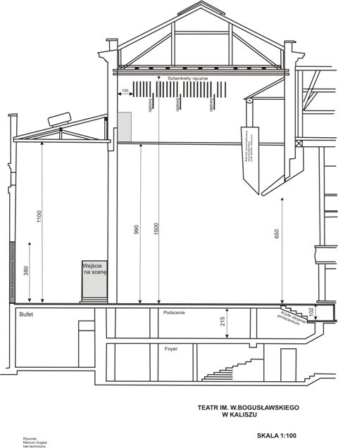
(detail)Wojciech Bogusławski Theatre - building(detail)Wojciech Bogusławski Theatre - details(detail)Wojciech Bogusławski Theatre - stage and auditoriumWojciech Bogusławski Theatre - plans and drawings(detail)Wojciech Bogusławski Theatre - old photos(detail)Wojciech Bogusławski Theatre - building in 2009


















